
| 製品情報 等 |
▼BF-331RGSC 浴室換気乾燥暖房機 1室換気
【付属品】リモコン KK-RGS ワイヤレスリモコン
|
24時間換気対応(天井タイプ/1室換気)
●1モーター+1ファン方式(送風・換気ダンパーで切替)
●ワイヤレスリモコン
●選べる3つの乾燥モード
●電動ルーバー
●人感センサーによるオート運転機能
●1室天井用換気扇のグレードアップモデルとして最適
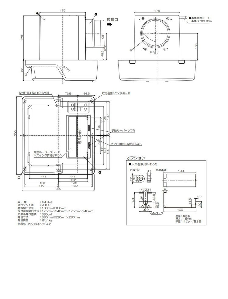
●開口180mm角の天井換気扇をはずして、そのまま設置できます。
●電源ケーブル(約0.5m)
●適用床面積目安ユニットバス:1.0坪以下/脱衣室・シャワールーム取付可
製品仕様
●搭載ヒーター
絶縁型PTCセラミックヒーター(1200W)
●開口寸法(mm)
180×180(175~240×175~240まで対応)
●適合パイプ(mm)
φ100